The Property

Sitting on over 90 acres of working farmland,
The Pines is a newly renovated homestead & suite
with a generous pool & gorgeous outlook.

Sitting on over 90 acres
of working farmland,
The Pines is a newly renovated homestead & suite with a generous pool & gorgeous outlook.

The Pines is secluded & private although just a 3 min drive from the beautiful town of Barwon Heads. Perfect for a large family, group of friends or anyone who feels like some down time whilst still being close to all that the Bellarine Peninsula has to offer.

When you hire The Pines, you have access to the 90 acre property and use of the house & the suite.

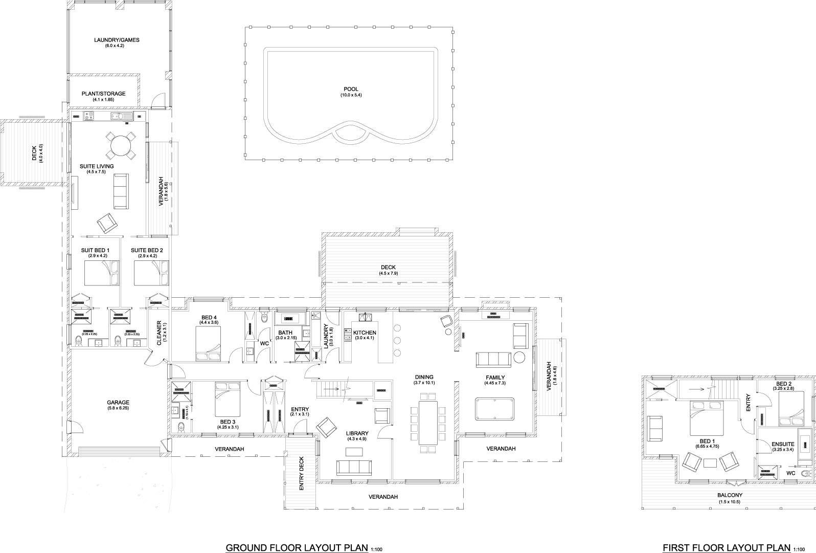
Maximum occupancy is twelve guests with six beds in total for both the house & suite.

Four bedrooms in the main house & two in the suite.

Location

Only 1.25 hours from Melbourne CBD & just a short drive to:

Barwon Heads – 3min
Ocean Grove – 13min
Torquay – 17min
Queenscliff – 24 min
Geelong – 24min
Portarlington – 34min

Full Floor Layout Plan

Full Floor Layout Plan
Download

The Pines is perfect for a large family, group of friends or anyone who feels like some down time whilst still being close to all that the Bellarine Peninsula has to offer.